
|
NO. |
零件名称 |
A42Y-160 A42Y-320 材料 |
A42Y-160P A42Y-320P 材料 |
A42Y-160R A42Y-320R 材料 |
|
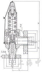
1 |
法兰 |
35/35CrMoA |
2Cr13 |
1Cr18Ni12Mo2Ti |
|
2 |
阀座 |
2Cr13 |
1Cr18Ni9Ti |
1Cr18Ni12Mo2Ti |
|
3 |
阀体 |
40 |
1Cr18Ni9Ti |
1Cr18Ni12Mo2Ti |
|
4 |
调节圈 |
2Cr13 |
1Cr18Ni9Ti |
1Cr18Ni12Mo2Ti |
|
5 |
阀瓣 |
2Cr13 |
1Cr18Ni9Ti |
1Cr18Ni12Mo2Ti |
|
6 |
反冲盘 |
2Cr13 |
1Cr18Ni9Ti |
1Cr18Ni12Mo2Ti |
|
7 |
导向套 |
2Cr13 |
1Cr18Ni9Ti |
1Cr18Ni12Mo2Ti |
|
8 |
阀盖 |
ZG230-450 |
ZG230-450 |
ZG230-450 |
|
9 |
阀杆 |
2Cr13 |
1Cr18Ni9Ti |
1Cr18Ni9Ti |
|
10 |
弹簧 |
50CrVA |
50CrVA包覆氟塑料 |
50CrVA包覆氟塑料 |
|
11 |
调整螺杆 |
45 |
2Cr13 |
2Cr13 |
|
12 |
阀帽 |
ZG200-400 |
ZG200-400 |
ZG200-400 |
|
|
密封面材料 |
堆焊Co基硬质合金 |
||
|
公称压力PN(MPa) |
公称通径DN(mm) |
尺寸(mm) |
重量(kg) |
|||||||||||||||||
|
do |
d |
D |
D1 |
M |
D2 |
B |
Z-Φd |
DN |
D |
D1 |
M |
D2 |
b |
Z-Φd |
L |
L1 |
H |
|||
|
16 |
15 |
7 |
16 |
95 |
60 |
M-24×2 |
18 |
20 |
3-18 |
- |
36 |
- |
M-33×2 |
- |
- |
- |
45 |
80 |
105 |
4 |
|
20 |
10 |
19 |
95 |
60 |
M-33×2 |
22 |
20 |
3-18 |
- |
48 |
- |
M-33×2 |
- |
- |
- |
45 |
80 |
105 |
4.5 |
|
|
25 |
12 |
23 |
105 |
68 |
M-33×2 |
28 |
20 |
3-18 |
- |
48 |
- |
M-33×2 |
- |
- |
- |
45 |
80 |
105 |
5.2 |
|
|
16 |
15 |
8 |
15 |
95 |
60 |
M-24×2 |
18 |
20 |
3-18 |
32 |
115 |
- |
M-42×2 |
37 |
22 |
4-18 |
95 |
100 |
259 |
7.8 |
|
20 |
10 |
23 |
98 |
60 |
M-24×2 |
20 |
20 |
3-18 |
40 |
165 |
- |
M-52×2 |
47 |
28 |
6-26 |
110 |
115 |
266 |
11.5 |
|
|
25 |
12 |
23 |
105 |
68 |
M-33×2 |
28 |
20 |
3-18 |
40 |
165 |
- |
M-52×2 |
47 |
28 |
6-26 |
110 |
115 |
266 |
12.5 |
|
|
32 |
15 |
25 |
115 |
80 |
M-42×2 |
37 |
22 |
4-18 |
50 |
165 |
115 |
M-64×3 |
59 |
32 |
6-26 |
130 |
1450 |
335 |
21.3 |
|
|
40 |
20 |
39 |
165 |
115 |
M-52×2 |
47 |
28 |
6-26 |
65 |
200 |
145 |
M-80×3 |
74 |
40 |
6-29 |
150 |
170 |
390 |
35.3 |
|
|
50 |
25 |
48 |
165 |
115 |
M-64×3 |
59 |
32 |
6-26 |
80 |
225 |
170 |
M-100×3 |
94 |
50 |
6-33 |
190 |
210 |
393 |
48 |
|
|
32 |
15 |
8 |
17 |
105 |
68 |
M-33×2 |
29 |
20 |
3-18 |
32 |
115 |
80 |
M-42×2 |
37 |
22 |
4-18 |
95 |
100 |
259 |
8.1 |
|
20 |
10 |
23 |
105 |
68 |
M-33×2 |
29 |
20 |
3-18 |
40 |
165 |
115 |
M-52×2 |
47 |
28 |
6-26 |
110 |
115 |
266 |
12 |
|
|
25 |
12 |
23 |
115 |
80 |
M-42×2 |
36 |
22 |
4-18 |
40 |
165 |
115 |
M-52×2 |
47 |
28 |
6-26 |
110 |
115 |
266 |
13 |
|
|
32 |
14 |
30 |
135 |
95 |
M-48×2 |
41 |
25 |
4-22 |
50 |
165 |
115 |
M-64×3 |
59 |
32 |
6-26 |
130 |
140 |
335 |
22.2 |
|
|
40 |
16 |
38 |
165 |
115 |
M-64×3 |
57 |
32 |
6-26 |
65 |
200 |
145 |
M-80×3 |
70 |
40 |
6-29 |
150 |
170 |
390 |
37 |
|
|
50 |
20 |
48 |
200 |
145 |
M-80×3 |
70 |
40 |
6-29 |
80 |
225 |
170 |
M-100×3 |
94 |
50 |
6-33 |
190 |
210 |
393 |
55 |
|
公司总机:021-6651 6999
销售部: 021-5161 9977 021-5161 9868
公司传真:021-5647 6999
E-mail : zshfm@zshvalve.com
版权所有:上海中石化阀门制造有限公司 沪ICP备11040876号-1
简体中文版
English
