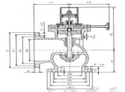
公称通径 DN(mm)
尺寸(mm)
重量(kg)
D
D1
D2
D0
b
Z-Φd
L1
L2
H1
H2
150
300
250
218
204
30
8-25
360
310
278
200
34
12-25
220
240
230
560
135
375
320
285
260
38
12-30
485
430
390
40
16-30
270
330
295
615
261
445
385
345
313
42
12-34
550
490
448
350
44
16-34
370
646
354
请务必填写清楚所咨询或采购的产品详细参数和数量