
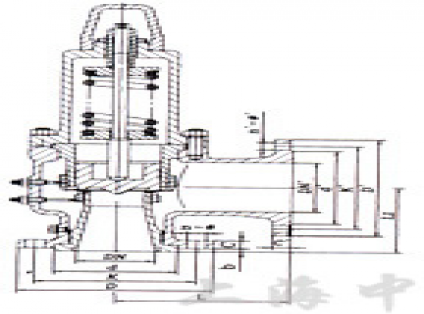
炼油专用安全阀是石油化工受压容器的注要附件之一,用于控制空器压力,保证容器安全。本系列安全阀为密闭全开型弹簧安全阀,即当气体介质压力高于整定压力3%时,阀瓣开启高度超过流道直径的四分之一。本系列安全阀可在具有稳定背压,无腐蚀或含轻微硫腐蚀的气体、液体下使用。
注:参数仅供参考,或有不全。阀门可根据要求选用不同压力、材质、口径、驱动方式等。具体请来电联系或在线咨询。
|
系列 |
型号 |
进口法兰 |
定压范围 |
代号 |
流道尺寸 |
使用温度 |
||
|
公称通径 |
公称压力 |
流道直径do |
流道面积 |
|||||
|
mm |
MPa |
MPa |
mm |
cm2 |
℃ |
|||
|
A型 |
A1D40 |
25 |
4.0 |
0.03-4.2 |
D |
10 |
0.78 |
-25-300 |
|
A1.5F40 |
40 |
4.0 |
0.03-4.2 |
F |
16 |
2.0 |
-25-300 |
|
|
A2J16 |
50 |
1.6 |
0.03-<1.3 |
J |
33 |
8.54 |
-25-300 |
|
|
A2H40 |
50 |
4.0 |
1.30-4.2 |
H |
26 |
5.31 |
-25-300 |
|
|
A3L16 |
80 |
1.6 |
0.03-<1.6 |
L |
50 |
19.62 |
-25-300 |
|
|
A3K40 |
80 |
4.0 |
1.60-4.2 |
K |
40 |
12.56 |
-25-300 |
|
|
A4P16 |
100 |
1.6 |
0.03-<0.55 |
P |
72 |
4.69 |
-25-300 |
|
|
A4N40 |
100 |
4.0 |
1.60-1.6 |
N |
60 |
28.26 |
-25-300 |
|
|
A6R5.5 |
150 |
1.6 |
0.03-4.2 |
R |
115 |
1403.2 |
-25-300 |
|
|
A6Q16 |
150 |
1.6 |
0.55-4.2 |
Q |
96 |
72.35 |
-25-300 |
|
|
TA型 |
TA1D40 |
25 |
4.0 |
0.03-<1.3 |
D |
10 |
0.78 |
>300-550 |
|
TA1.F540 |
40 |
4.0 |
0.03-4.2 |
F |
16 |
2.0 |
>300-550 |
|
|
TA2J16 |
50 |
1.6 |
0.03-<1.6 |
J |
33 |
8.54 |
>300-550 |
|
|
TA2H40 |
50 |
4.0 |
1.30-4.2 |
H |
26 |
5.31 |
>300-550 |
|
|
TA3L16 |
80 |
1.6 |
0.03-1.6 |
L |
50 |
19.62 |
>300-550 |
|
|
TA3K40 |
80 |
4.0 |
1.60-4.2 |
K |
40 |
12.56 |
>300-550 |
|
|
TA4P16 |
100 |
1.6 |
0.03-<1.6 |
P |
72 |
40.69 |
>300-550 |
|
|
TA4N40 |
100 |
4.0 |
1.60-4.2 |
N |
60 |
28.26 |
>300-550 |
|
|
TA6R5.5 |
150 |
1.6 |
0.03-<0.05 |
R |
115 |
103.82 |
>300-550 |
|
|
TA6Q16 |
150 |
1.6 |
0.55-1.6 |
Q |
96 |
72.35 |
>300-550 |
|
|
型号 |
公称 通径 |
do |
D |
K |
g |
g1 |
b |
f |
f1 |
Z-?d |
DN' |
D1 |
K1 |
g3 |
g2 |
b1 |
f' |
f1' |
Z1-?d1 |
L |
L1 |
≈H |
|
WA42Y-16 |
25 |
16 |
115 |
85 |
/ |
65 |
16 |
2 |
/ |
4-14 |
32 |
140 |
100 |
/ |
78 |
18 |
2 |
/ |
4-18 |
110 |
95 |
378 |
|
32 |
20 |
140 |
100 |
/ |
78 |
18 |
2 |
/ |
4-18 |
40 |
150 |
110 |
/ |
85 |
18 |
3 |
/ |
4-18 |
115 |
100 |
378 |
|
|
40 |
25 |
150 |
110 |
/ |
85 |
18 |
3 |
/ |
4-18 |
50 |
165 |
125 |
/ |
100 |
18 |
3 |
/ |
4-18 |
120 |
110 |
406 |
|
|
50 |
32 |
165 |
125 |
/ |
100 |
20 |
3 |
/ |
4-18 |
65 |
185 |
145 |
/ |
120 |
20 |
3 |
/ |
4-18 |
135 |
120 |
450 |
|
|
65 |
40 |
185 |
145 |
/ |
120 |
20 |
3 |
/ |
4-18 |
80 |
200 |
160 |
/ |
135 |
20 |
3 |
/ |
8-18 |
160 |
140 |
520 |
|
|
80 |
50 |
200 |
160 |
/ |
135 |
20 |
3 |
/ |
8-18 |
100 |
220 |
180 |
/ |
155 |
22 |
3 |
/ |
8-18 |
170 |
135 |
525 |
|
|
100 |
65 |
220 |
180 |
/ |
155 |
22 |
3 |
/ |
8-18 |
125 |
250 |
210 |
/ |
185 |
22 |
3 |
/ |
8-18 |
195 |
175 |
690 |
|
|
125 |
80 |
250 |
210 |
/ |
185 |
22 |
3 |
/ |
8-18 |
150 |
285 |
240 |
/ |
210 |
24 |
3 |
/ |
8-23 |
210 |
190 |
857 |
|
|
150 |
100 |
285 |
240 |
/ |
210 |
24 |
3 |
/ |
8-23 |
175 |
310 |
270 |
/ |
240 |
26 |
3 |
/ |
8-23 |
255 |
230 |
838 |
|
|
200 |
125 |
340 |
295 |
/ |
265 |
26 |
3 |
/ |
12-23 |
250 |
405 |
355 |
/ |
320 |
30 |
3 |
/ |
12-26 |
300 |
260 |
992 |
|
|
WA42Y-25 |
25 |
16 |
115 |
85 |
/ |
65 |
16 |
2 |
/ |
4-14 |
32 |
140 |
100 |
/ |
78 |
18 |
2 |
/ |
4-18 |
110 |
95 |
378 |
|
32 |
20 |
140 |
100 |
/ |
78 |
18 |
2 |
/ |
4-18 |
40 |
150 |
110 |
/ |
85 |
18 |
3 |
/ |
4-18 |
115 |
100 |
378 |
|
|
40 |
25 |
150 |
110 |
/ |
85 |
18 |
3 |
/ |
4-18 |
50 |
165 |
125 |
/ |
100 |
20 |
3 |
/ |
4-18 |
120 |
110 |
406 |
|
|
50 |
32 |
165 |
125 |
/ |
100 |
20 |
3 |
/ |
4-18 |
65 |
185 |
145 |
/ |
120 |
20 |
3 |
/ |
4-18 |
135 |
120 |
450 |
|
|
65 |
40 |
185 |
145 |
/ |
120 |
22 |
3 |
/ |
8-18 |
80 |
200 |
160 |
/ |
135 |
20 |
3 |
/ |
8-18 |
160 |
140 |
520 |
|
|
80 |
50 |
200 |
160 |
/ |
135 |
22 |
3 |
/ |
8-18 |
100 |
220 |
180 |
/ |
155 |
22 |
3 |
/ |
8-18 |
170 |
135 |
525 |
|
|
100 |
65 |
230 |
190 |
/ |
160 |
24 |
3 |
/ |
8-23 |
125 |
250 |
210 |
/ |
185 |
22 |
3 |
/ |
8-18 |
195 |
175 |
690 |
|
|
125 |
80 |
270 |
220 |
/ |
188 |
28 |
3 |
/ |
8-26 |
150 |
285 |
240 |
/ |
210 |
24 |
3 |
/ |
8-23 |
210 |
190 |
780 |
|
|
150 |
100 |
300 |
250 |
/ |
218 |
30 |
3 |
/ |
8-26 |
175 |
310 |
270 |
/ |
240 |
26 |
3 |
/ |
8-23 |
255 |
230 |
838 |
|
|
200 |
125 |
360 |
310 |
/ |
278 |
34 |
3 |
/ |
12-26 |
250 |
405 |
355 |
/ |
320 |
30 |
3 |
/ |
12-26 |
300 |
260 |
992 |
|
|
WA42Y-40 |
25 |
16 |
115 |
85 |
58 |
65 |
16 |
2 |
4 |
4-14 |
32 |
140 |
100 |
/ |
78 |
18 |
2 |
/ |
4-18 |
110 |
95 |
378 |
|
32 |
20 |
140 |
100 |
66 |
78 |
18 |
2 |
4 |
4-18 |
40 |
150 |
110 |
/ |
85 |
18 |
3 |
/ |
4-18 |
115 |
100 |
378 |
|
|
40 |
25 |
150 |
110 |
76 |
85 |
18 |
3 |
4 |
4-18 |
50 |
165 |
125 |
/ |
100 |
20 |
3 |
/ |
4-18 |
120 |
110 |
406 |
|
|
50 |
32 |
165 |
125 |
88 |
100 |
20 |
3 |
4 |
4-18 |
65 |
185 |
145 |
/ |
120 |
20 |
3 |
/ |
4-18 |
135 |
120 |
450 |
|
|
65 |
40 |
185 |
145 |
110 |
120 |
22 |
3 |
4 |
8-18 |
80 |
200 |
160 |
/ |
135 |
20 |
3 |
/ |
8-18 |
160 |
140 |
520 |
|
|
80 |
60 |
200 |
160 |
121 |
135 |
24 |
3 |
4 |
8-18 |
100 |
220 |
180 |
/ |
155 |
22 |
3 |
/ |
8-18 |
170 |
135 |
525 |
|
|
100 |
65 |
235 |
190 |
150 |
160 |
24 |
3 |
4.5 |
8-23 |
125 |
250 |
210 |
/ |
185 |
22 |
3 |
/ |
8-18 |
195 |
175 |
690 |
|
|
125 |
80 |
270 |
220 |
188 |
176 |
28 |
3 |
4.5 |
8-26 |
150 |
285 |
240 |
/ |
210 |
24 |
3 |
/ |
8-23 |
210 |
190 |
857 |
|
|
150 |
100 |
300 |
250 |
204 |
218 |
30 |
3 |
4.5 |
8-26 |
175 |
310 |
270 |
/ |
240 |
26 |
3 |
/ |
8-23 |
255 |
230 |
838 |
|
|
200 |
125 |
375 |
320 |
260 |
282 |
38 |
3 |
4.5 |
12-30 |
250 |
405 |
355 |
/ |
320 |
30 |
3 |
/ |
12-26 |
300 |
260 |
992 |
|
|
WA42Y-64 |
25 |
16 |
140 |
100 |
58 |
78 |
22 |
2 |
4 |
4-18 |
32 |
140 |
100 |
66 |
78 |
18 |
2 |
4 |
4-18 |
110 |
100 |
277 |
|
32 |
20 |
155 |
110 |
66 |
82 |
24 |
2 |
4 |
4-23 |
40 |
150 |
110 |
76 |
85 |
18 |
3 |
4 |
4-18 |
130 |
110 |
289 |
|
|
40 |
25 |
170 |
125 |
76 |
95 |
24 |
3 |
4 |
4-23 |
50 |
165 |
125 |
88 |
100 |
20 |
3 |
4 |
4-18 |
130 |
120 |
319 |
|
|
50 |
32 |
180 |
135 |
88 |
105 |
26 |
3 |
4 |
4-23 |
65 |
185 |
145 |
110 |
120 |
22 |
3 |
4 |
8-18 |
135 |
130 |
389 |
|
|
65 |
40 |
205 |
160 |
110 |
130 |
28 |
3 |
4 |
8-23 |
80 |
200 |
160 |
121 |
135 |
22 |
3 |
4 |
8-18 |
175 |
160 |
493 |
|
|
80 |
50 |
215 |
170 |
121 |
140 |
30 |
3 |
4 |
8-23 |
100 |
235 |
190 |
150 |
160 |
24 |
3 |
4.5 |
8-23 |
175 |
160 |
483 |
|
|
100 |
65 |
250 |
200 |
150 |
168 |
32 |
3 |
4.5 |
8-26 |
125 |
270 |
220 |
176 |
188 |
28 |
3 |
4.5 |
8-25 |
195 |
195 |
613 |
|
|
150 |
100 |
345 |
280 |
204 |
240 |
38 |
3 |
4.5 |
8-34 |
200 |
375 |
320 |
260 |
282 |
38 |
3 |
4.5 |
12-30 |
280 |
265 |
894 |
|
|
WA42Y-100 |
25 |
16 |
140 |
100 |
58 |
78 |
24 |
3 |
4 |
4-18 |
32 |
140 |
100 |
66 |
78 |
18 |
2 |
4 |
4-18 |
110 |
100 |
277 |
|
32 |
20 |
155 |
110 |
66 |
82 |
24 |
2 |
4 |
4-23 |
40 |
150 |
110 |
76 |
85 |
18 |
3 |
4 |
4-18 |
130 |
110 |
289 |
|
|
40 |
25 |
170 |
125 |
76 |
95 |
26 |
2 |
4 |
4-23 |
50 |
165 |
125 |
88 |
100 |
20 |
3 |
4 |
4-18 |
130 |
120 |
319 |
|
|
50 |
32 |
195 |
145 |
88 |
112 |
28 |
3 |
4 |
4-26 |
65 |
185 |
145 |
110 |
120 |
22 |
3 |
4 |
8-18 |
135 |
130 |
389 |
|
|
65 |
32 |
220 |
170 |
110 |
138 |
32 |
3 |
4 |
8-26 |
80 |
200 |
160 |
121 |
135 |
22 |
3 |
4 |
8-18 |
175 |
160 |
493 |
|
|
80 |
40 |
230 |
180 |
121 |
148 |
34 |
3 |
4 |
8-26 |
100 |
235 |
190 |
150 |
160 |
24 |
3 |
4.5 |
8-23 |
175 |
160 |
483 |
|
|
100 |
50 |
265 |
210 |
150 |
172 |
38 |
3 |
4.5 |
8-30 |
125 |
270 |
220 |
176 |
188 |
28 |
3 |
4.5 |
8-25 |
195 |
195 |
613 |
|
|
150 |
80 |
355 |
290 |
204 |
250 |
46 |
3 |
4.5 |
12-34 |
200 |
375 |
320 |
260 |
282 |
38 |
3 |
4.5 |
12-30 |
280 |
265 |
894 |
公司总机:021-6651 6999
销售部: 021-5161 9977 021-5161 9868
公司传真:021-5647 6999
E-mail : zshfm@zshvalve.com
版权所有:上海中石化阀门制造有限公司 沪ICP备11040876号-1
简体中文版
English
