本阀专用于控制非腐蚀性或一般腐蚀性介质,阀体内腔表面无衬里或覆有可供选择的各种橡胶,适用于不同工作温度和流体管路。
注:参数仅供参考,或有不全。阀门可根据要求选用不同压力、材质、口径、驱动方式等。具体请来电联系或在线咨询。
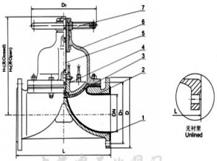
阀体:铸铁、球墨铸铁、碳钢、不锈钢
阀盖:铸铁、球墨铸铁、碳钢、不锈钢
衬里:无衬里、橡胶
隔膜:橡胶
阀瓣:铸铁
阀杆:碳钢、不锈钢
手轮:铸铁
衬里层:电火花检测
试验与检验按GB/T13297标准
公称压力:PN(Mpa)
阀体:PN×1.5
密封:PN×1.1
|
公称通径
DN
|
公称压力
Mpa
|
工作压力
Mpa
|
L
(mm)
|
D
(mm)
|
D1
(mm)
|
n-φd
(mm)
|
F
(mm)
|
H1
(mm)
|
H2
(mm)
|
D0
(mm)
|
质量
|
|
15
|
1.5
|
1.0
|
125
|
95
|
65
|
4-14
|
2
|
105
|
116
|
120
|
4.5
|
|
20
|
135
|
105
|
75
|
4-14
|
2
|
117
|
128
|
120
|
4.5
|
|
25
|
145
|
115
|
85
|
4-14
|
2
|
121
|
135
|
120
|
5
|
|
32
|
160
|
140
|
100
|
4-18
|
2
|
132
|
150
|
120
|
7
|
|
40
|
180
|
150
|
110
|
4-18
|
3
|
156
|
176
|
140
|
9
|
|
50
|
210
|
165
|
125
|
4-18
|
3
|
169
|
195
|
140
|
12.5
|
|
65
|
250
|
185
|
145
|
4-18
|
3
|
200
|
236
|
200
|
19
|
|
80
|
300
|
200
|
160
|
4-18
|
3
|
216
|
256
|
200
|
25.5
|
|
100
|
350
|
220
|
180
|
8-18
|
3
|
270
|
322
|
280
|
40
|
|
125
|
400
|
250
|
210
|
8-18
|
3
|
315
|
380
|
320
|
62
|
|
150
|
460
|
285
|
240
|
8-22
|
3
|
378
|
458
|
320
|
80.5
|
|
200
|
0.6
|
0.4
|
570
|
340
|
295
|
8-22
|
4
|
518
|
638
|
400
|
146
|
|
250
|
680
|
395
|
350
|
12-22
|
4
|
583
|
720
|
500
|
240
|
|
300
|
790
|
445
|
400
|
12-22
|
4
|
698
|
778
|
500
|
334
|
|
350
|
900
|
505
|
460
|
16-22
|
4
|
723
|
883
|
500
|
371
|
|
400
|
0.25
|
1000
|
565
|
515
|
16-26
|
4
|
868
|
1078
|
640
|
584
|
隔膜阀是一种特殊形式的截断阀;
1、弹性密封的开闭件,确保没有内漏;
2、流线型的流道,使得压力损失小;
3、没有填料函,因此没有外漏;
4、阀体与盖被中间隔膜隔开,使得隔膜上方的阀盖,阀杆等零件不受介质侵蚀;
5、隔膜可更换,维护费用低;
6、衬里材料的多样性,可适用于各种介质,并具有良好的耐腐蚀性。