螺旋闸门是一种粉料、晶粒料、颗粒料及小块物料的流量或输送量的主要控制设备,广泛使用在冶金、矿山、建材、粮食、化工等行业控制流量变化或迅速切断。螺旋闸阀用途:用于调节中间仓内的水泥物料的流量,在设备检修时用于关闭中间仓出口,停止供料。螺旋闸阀安装方式:入料口用紧固件与中间仓出口法兰相接,出料口用紧固件与给料机入料口相接。
订货须知:
一、如未有选定的型号,请提供详细参数,如介质、温度、压力、口径、材质等,由我司技术人员为您选型
二、如已有选定的型号,按选定型号提供
三、非标产品需提供样品或以图纸确认
注:资料仅供参考,或有不全,因此给您带来的不便敬请谅解。本公司可根据不同的要求及参数进行选型。本公司有各种大小口径,压力,不同的材质,连接方式,驱动方式,,满足不同需求的各类闸阀。具体请来电联系021-6651 8677或在线咨询。
螺旋闸阀用途
用于调节中间仓内的水泥物料的流量,在设备检修时用于关闭中间仓出口,停止供料。
螺旋闸阀安装方式
入料口用紧固件与中间仓出口法兰相接,出料口用紧固件与给料机入料口相接。
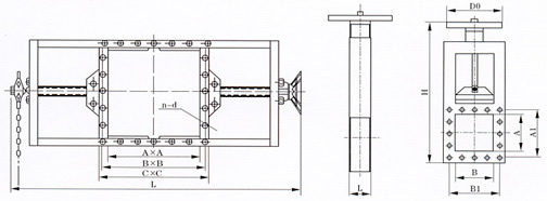
|
类别
|
A×A
|
B×B
|
C×C
|
H
|
L
|
n-d
|
重量
|
|
单向
|
200×200
|
256×256
|
296×296
|
820
|
100
|
8-Φ12
|
62
|
|
250×250
|
306×306
|
346×346
|
930
|
100
|
8-Φ14
|
70.5
|
|
300×300
|
356×356
|
396×396
|
1050
|
100
|
8-Φ14
|
81
|
|
400×400
|
456×456
|
496×496
|
140
|
100
|
12-Φ14
|
114
|
|
450×450
|
510×510
|
556×556
|
1450
|
120
|
12-Φ18
|
130
|
|
500×500
|
560×560
|
606×606
|
1610
|
120
|
16-Φ18
|
147
|
|
双向
|
600×600
|
660×660
|
706×706
|
1830
|
120
|
16-Φ18
|
169
|
|
700×700
|
770×770
|
820×820
|
2130
|
140
|
20-Φ18
|
236
|
|
800×800
|
870×870
|
920×920
|
2440
|
140
|
20-Φ18
|
303
|
|
900×900
|
974×974
|
1030×1030
|
2660
|
160
|
27-Φ23
|
424
|
|
1000×1000
|
10741074
|
1130×1130
|
2870
|
160
|
24-Φ23
|
636
|
|
说明
|
LMD-单向
|
I-手轮
|
距地面小于1.7米用手轮,大于1.7米用链轮
链条节数M=0.105X-113(X是丝杆中心离地面度度)
|
|
LMS-双向
|
Ⅱ-链轮
|
1、启闭快:启闭闸阀的时间仅为传统产品的1/6。
2、操作快:螺杆、螺母工作在粉状物料隔绝的密封缸筒内,实现了无尘润滑传动,免除了粉尘。锈蚀对传动的影响,确保闸阀操作省时、省力、恒久如初。
3、封闭严:螺杆和缸筒的交接处采用双层防尘圈,因而密封严,不飞尘,寿命长。
4、抗高温:密封件选用高耐热材料,在水泥或粉煤灰温度高达125℃时仍能确保正常工作。